Enjoy a bespoke modern farmhouse with Bruce Trail hiking 2 min from Devils Glen! | House in Duntroon

5 Bedroom House in Clearview, Duntroon
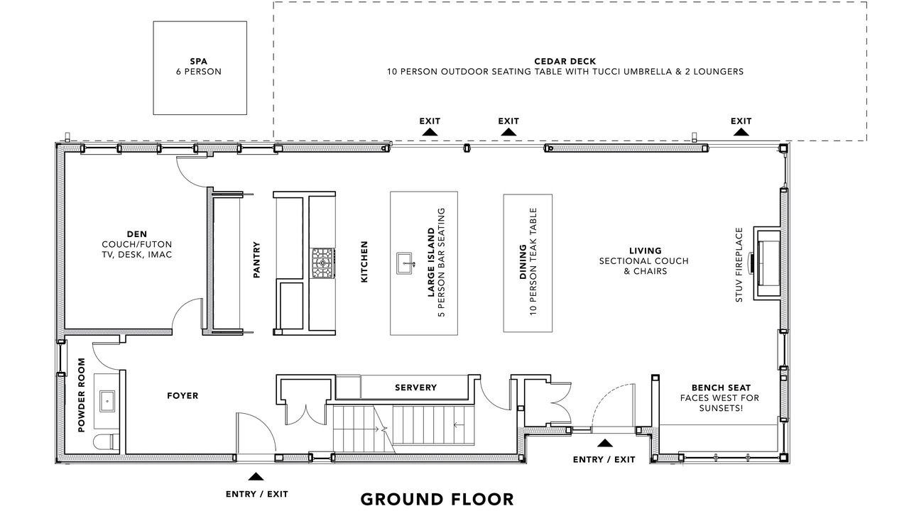
Welcome to Ironwood House!
PLEASE NOTE:
• THE MAXIMUM NUMBER OF GUESTS IS 8.
(Kindly refer to house rules before booking.)
• AVAILABLE FOR 4 NIGHT MINIMUM STAYS
Book now to enjoy a custom built, contemporary farmhouse constructed in 2019 on 12 acres, 2 minutes from Devils Glen near Creemore and Collingwood! The house features 3,500 sf of living space + 1,200 sf of decks with 5 bedrooms.
Designed by Toronto architecture firm, RUB Design, Ironwood offers complete privacy and backs directly onto the Bruce Trail at Duntroon Crevice Heights on the Niagara Escarpment. The expansive property features plenty of outdoor areas, including a large deck that opens up off the main living area where there is a 6-person STIL hot tub with therapeutic jet packs and modern outdoor furniture to lounge on and appreciate the bucolic setting. Enjoy the allée of white ornamental crabapples trees lining the driveway and low lilac hedges around the perimeter of the backyard.
The interior of the 3,500-square-foot space is open concept with a central living, kitchen, dining area and separate den and pantry. Enjoy gatherings in the great room by the Stûv wood burning fireplace, lounge in the oversized window seat or watch TV on the UHD flatscreen.
The house’s well-appointed, gourmet kitchen features a modern Scavolini kitchen, Miele stainless appliances with 6 burner gas range, large Miele built-in fridge and dishwasher, 10’ caesarstone breakfast bar/island seating 5 and a teak dining table seating 10. An outdoor table with Tucci umbrella allows you to enjoy the fabulous countryside views.
After a fantastic day exploring Clearview Township, you will find 5 well-appointed bedrooms with premium mattresses, pillows, and linens.
Primary bedroom (sleeps 2): King bed, custom window seat, book shelves, large windows. Au Lit fine linens, Herman Miller bed, down pillows, down duvet, hand knit blankets, large walk-in closet. Private ensuite bathroom, heated floor, sink, separate shower, free-standing tub.
Bedroom #2 (sleeps 2): Queen bed, spacious closet with built-in shelving, large windows. Baronet slat bed, bamboo sheets, down pillows, down duvet, hand knit blankets.
Bedroom #3 (sleeps 2): Queen bed with headboard, spacious closet with built-in shelving, large windows. Headboard with bamboo sheets, down pillows and down duvet, hand knit blankets.
Bedroom #4 (sleeps 1): Double bed with headboard, spacious closet with built-in shelving, large windows. Bamboo sheets, down pillows, down duvet, hand knit blankets.
Bedroom #5 (sleeps 1): Twin bed with headboard, bamboo sheets, down pillows, down duvet, hand knit blankets.
Extra large bathroom with heated floor, double sink and separate shower services the secondary bedrooms.
The lower level features a games room with a ping pong table, bumper pool table and seating area with flatscreen tv.
Other notable features designed to make your stay enjoyable include infrared sauna, washer and dryer, dishwasher, bar fridge, outside barbecue, WIFI, 3 smart TVs (great room, den, basement), iMac with large monitor (den), 6-person STIL hot tub with therapeutic jet packs, back-up generator, on-site reverse osmosis filtration system, modern outdoor dining table with umbrella, lounge chairs, games (croquet, bocci, badminton, tether ball) and so much more.
You will be greeted upon arrival at the farmhouse. Upon arrival you will be guided through an orientation of the house features and amenities. Collingwood and area is truly a year-round destination. In the summer enjoy the harbour and beach areas, microbreweries, wineries, golfing and hiking. Explore the surrounding historic towns of Creemore, Town of Blue Mountain and Thornbury. In the winter enjoy downhill or x-country skiing, snow-shoeing or stroll around Blue Mountain village. Be one of the first to enjoy this new modern farmhouse!
Enjoy a bespoke modern farmhouse with Bruce Trail hiking 2 min from Devils Glen! is located in Clearview. Enjoy a bespoke modern farmhouse with Bruce Trail hiking 2 min from Devils Glen! provides accommodation, featuring Parking, Balcony/Terrace, Sports/Activities, among other amenities. This House features Parking, Balcony/Terrace, Sports/Activities, to make your stay a comfortable one.
Enjoy a bespoke modern farmhouse with Bruce Trail hiking 2 min from Devils Glen! has 5 Bedrooms , 2 Bathrooms, and max occupancy of 8 people. The minimum rental for this property is 1 nights, but this can change depending on the season you plan on staying. Previous guests have given good rated it, and VRBO labeled it a top-rated House because of the excellent services rendered by the owner or manager of this House, and has consistently provided great experiences for their guests. Most families or guests that use it recommend it to their friends and some of them are repeat guests. House has a friendly neighborhood, and the Clearview has interesting places to visit. If you want to learn more about the House in Clearview, such as places to visit and things to do nearby, you can check below to learn more.
Amenities
Facility Overview
-
Air conditioning
-
Heating
-
Toilet paper
-
Towels provided
-
Hair dryer
-
Soap
-
2+ bathrooms
-
Shower
-
Bed sheets provided
-
5 bedrooms
-
Dining table
-
Fireplace
-
Living room
-
Toaster
-
Paper towels
-
Cookware/dishes/utensils
-
Oven
-
Refrigerator
-
Kitchen island
-
Dishwasher
-
Microwave
-
Stovetop
-
Washing machine and dryer
-
Laundry facilities
-
Beach towels
-
Onsite parking options include a garage
-
Onsite parking
-
Service animals only (pets not allowed)
-
If you have requests for specific accessibility needs, please contact the property using the information on the reservation confirmation received after booking.
-
Smoke-free property
-
Hardwood flooring in public areas
-
No elevators
-
Winery tours nearby
-
Hiking nearby
-
Mountain biking nearby
-
Fitness facilities nearby
-
Kayaking nearby
-
Golfing on site
-
Sledding nearby
-
Golf privileges
-
Cycling nearby
-
Birdwatching nearby
-
Water skiing nearby
-
Ecotours nearby
-
Stereo
-
Games
-
Books
-
Smart TV
-
Table tennis
-
Arcade/game room
-
At least 80% lighting from LEDs
-
Eco-friendly cleaning products used
-
Recycling
-
Composting
-
Unit size: 3500 sq ft (325 sq m)
-
English
-
Near the bay
-
Near a hospital
-
Near a health or beauty spa
-
In a rural location
-
Desk chair
-
Computer monitor
-
Desk
-
Printer
-
Children's dinnerware
-
Children's books
-
Playground
-
Children's games
-
Iron/ironing board
-
Housekeeping (on request)
-
Free WiFi
-
Garden
-
Outdoor furniture
-
Patio
-
Barbecue grill
-
Smoke detector installed (host has indicated there is a smoke detector on the property)
-
Carbon monoxide detector installed (host has indicated there is a carbon monoxide detector on the property)
-
First aid kit
-
Deadbolt lock
-
Fire extinguisher
-
Ski privileges
-
Ski lift privileges
-
Cross-country skiing and snowboarding nearby
-
Hot tub
-
Sauna
Policies
Extra-person charges may apply and vary depending on property policy government-issued photo identification and a credit card, debit card, or cash deposit may be required at check-in for incidental charges host has indicated there is a carbon monoxide detector on the property host has indicated there is a smoke detector on the property onsite parties or group events are strictly prohibited safety features at this property include a fire extinguisher, a first aid kit, and a deadbolt lock special requests are subject to availability upon check-in and may incur additional charges; special requests cannot be guaranteed this property is managed through our partner, vrbo. you will receive an email from vrbo with a link to a vrbo account, where you can change or cancel your reservation this property uses eco-friendly cleaning products