Luxe Los Gatos 5BR w/Backyard, close to Trails & Wineries, by Blueground | House in South Bay

5 Bedroom House in Cambrian, South Bay
Discover the best of Los Gatos, with this five bedroom house in Belwood-Belgatos. It’ll be easy to simply show up and start living in this beautifully furnished house with its fully equipped kitchen, charming living room, and our dedicated, on-the-ground support. (ID #SFO1614)
Designed with you in mind
Thoughtfully designed with bespoke finishes, modern furnishings, and a fully equipped kitchen, you’ll enjoy that “I’m home” feeling with this Blueground house. Whether you’re lounging in your spacious living room streaming the latest and greatest entertainment on the smart TV or premium wireless speaker, or getting some well-earned rest on the superior quality mattress with luxury linens, you’ll fall in love with everything this Belwood-Belgatos house has to offer. This house also offers in-house laundry.
Sleeping arrangements
King Bed, 70.8in/180cm
King Bed, 70.8in/180cm
Queen Bed, 63in/160cm
Queen Bed, 63in/160cm
Queen Bed, 63in/160cm
Amenities
Building amenities unique to this five bedroom house include an on-site:
- Dryer
- Washing machine
- Parking
- Pets allowed
Arrival and ongoing support
The entire house is yours to enjoy!
Throughout your stay, you’ll have access to our Client Experience team through the Blueground App. You can schedule additional cleanings, submit maintenance requests, and view our neighborhood recommendations with just a few taps.
We’ll share all details upon confirmation of your stay.
Other things to note
This Blueground house has flexible lease options, allowing you to book it for one month, a year, or more.
Pets are welcome, though weight limits and breed restrictions apply and may incur fees.
Parking is offered based on availability and is subject to a fee.
Please keep in mind that this is a walk up building.
We take great pride in ensuring every photo displayed is shot in our own units with our actual furnishings. That said, we regularly refresh our decor and furniture arrangement, which may differ from what’s pictured.
A security deposit of $500 is required at booking, which will be returned within 2-4 weeks after the check-out, minus any deductible damages.
Also note
- The apartment's fireplace is for decorative purposes only
- There are stairs leading up to the entrance of this apartment, but no elevator
Luxe Los Gatos 5BR w/Backyard, close to Trails & Wineries, by Blueground is located in Cambrian. Luxe Los Gatos 5BR w/Backyard, close to Trails & Wineries, by Blueground provides accommodation, featuring Child Friendly, Internet, Balcony/Terrace, among other amenities. This House features Child Friendly, Internet, Balcony/Terrace, to make your stay a comfortable one.
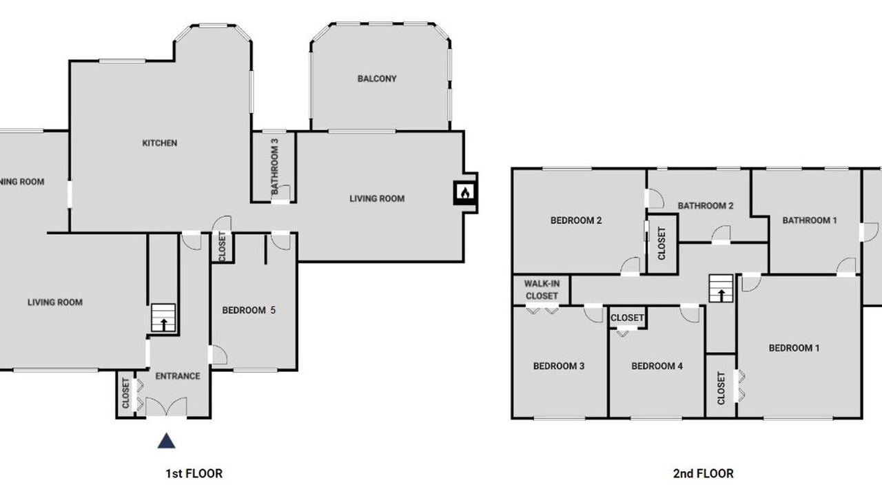
Luxe Los Gatos 5BR w/Backyard, close to Trails & Wineries, by Blueground has 5 Bedrooms , 3 Bathrooms, and max occupancy of 10 people. The minimum rental for this property is 1 nights, but this can change depending on the season you plan on staying. Previous guests have given good rated it, and VRBO labeled it a top-rated House because of the excellent services rendered by the owner or manager of this House, and has consistently provided great experiences for their guests. Most families or guests that use it recommend it to their friends and some of them are repeat guests. House has a friendly neighborhood, and the Cambrian has interesting places to visit. If you want to learn more about the House in Cambrian, such as places to visit and things to do nearby, you can check below to learn more.
Amenities
Facility Overview
-
Heating
-
3 bathrooms
-
Hair dryer
-
Towels provided
-
5 bedrooms
-
Bed sheets provided
-
Living room
-
Microwave
-
Refrigerator
-
Cookware/dishes/utensils
-
Dishwasher
-
Coffee/tea maker
-
Oven
-
Laundry facilities
-
Washing machine and dryer
-
Pet friendly
-
Smoke-free property
-
TV
-
English
-
Greek
-
Housekeeping (on request)
-
Iron/ironing board
-
WiFi available
-
Balcony
-
Carbon monoxide detector not reported (host has not indicated whether there is a carbon monoxide detector on the property; consider bringing a portable detector)
-
Smoke detector not reported (host has not indicated whether there is a smoke detector on the property)
Policies
Extra-person charges may apply and vary depending on property policy government-issued photo identification and a credit card, debit card, or cash deposit may be required at check-in for incidental charges host has not indicated whether there is a carbon monoxide detector on the property; consider bringing a portable detector with you on the trip host has not indicated whether there is a smoke detector on the property onsite parties or group events are strictly prohibited property registration number long-term rental special requests are subject to availability upon check-in and may incur additional charges; special requests cannot be guaranteed this property is managed through our partner, vrbo. you will receive an email from vrbo with a link to a vrbo account, where you can change or cancel your reservation