Family Friendly 7 bedrooms, 4.5 baths with game room & deck | House in Jamestown

7 Bedroom House in Jamestown
Location:
Located on a private half-acre lot in the center of Jamestown, this home is 7 miles from High Point Furniture Market, 5 miles from High Point University, 4 miles from Sedgefield Country Club, home of the PGA tour Wyndham Golf Championship, 10 miles from the Greensboro Coliseum and Aquatic Center and 12 miles from Piedmont Triad International Airport (PTI), 10 miles from University of North Carolina at Greensboro.
Also located within walking distance (<1 mile) to downtown Jamestown which has a great small-town feel that offers local restaurants and bakery, a brewery, nightlife and shopping.
Bedrooms:
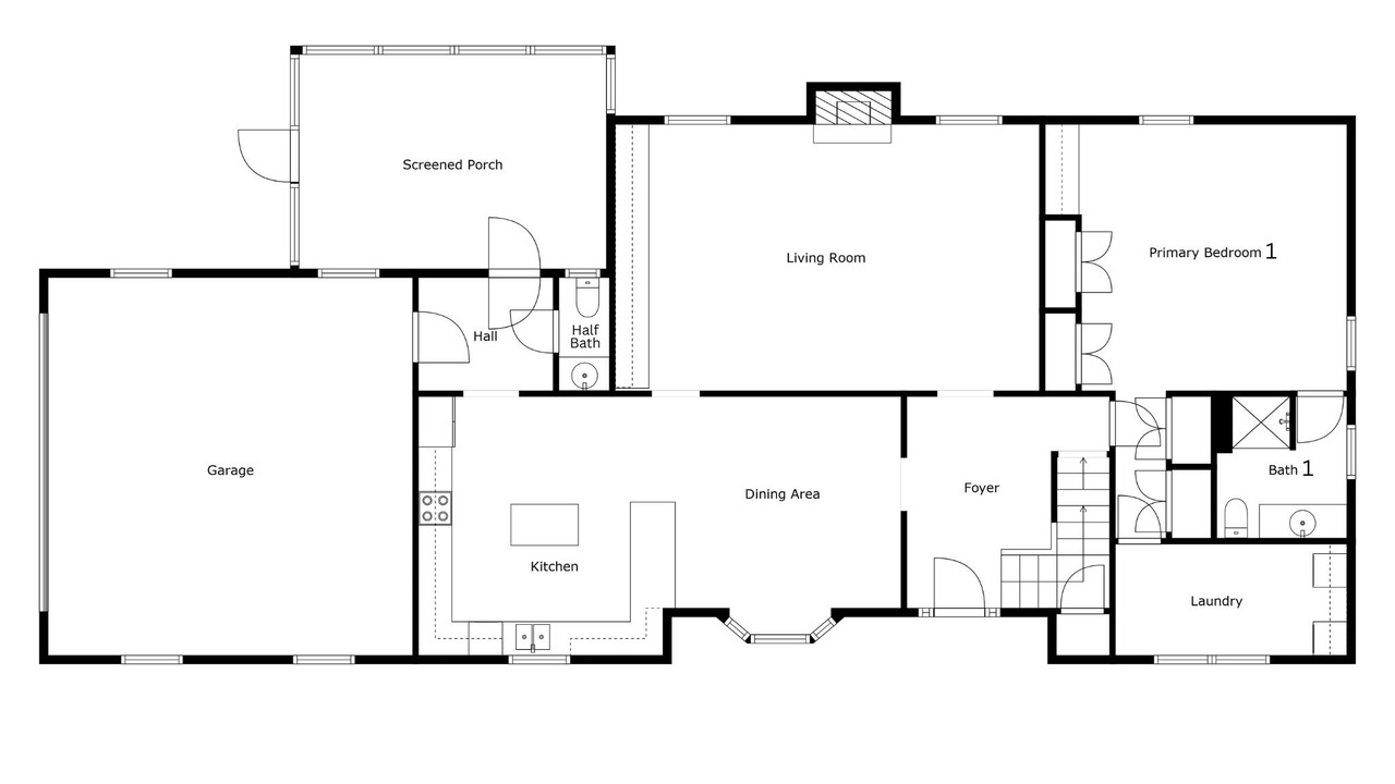
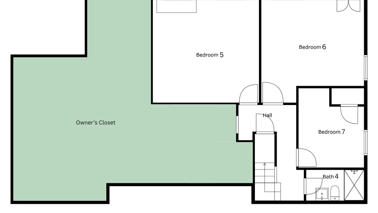
This home features 7 bedrooms, 4.5 baths and accommodates 21 people. Two master suites each with 50” smart TV; one on the main level with a queen and pull out twin sofa with private bathroom. The second master is on the upper level with a queen, twin and crib also with a private bathroom. An additional full bathroom and two more bedrooms on the upper level; one with twin over full bunk bed with trundle and an additional stand alone twin bed, the other bedroom with a single queen bed. A full bathroom located on the lower level along with three bedrooms; two of these bedrooms have two queen beds each and one has two twin beds.
Property:
The property offers plenty of parking and a private fenced-in back yard with traditional gas grill and a Blackstone flat top gas grill. The screened in porch offers an outdoor dining room table that doubles as a ping pong table with seating for 8 plus a rustic tailgate bench along with additional outdoor seating.
Fully Renovated:
This home was recently, completely renovated. New floors, all new lighting and fresh paint throughout. All new stainless steel appliances in open, fully-equipped kitchen which adjoining dining area. Extra large living room with candle lit fireplace, exposed beam ceiling, 65” smart TV, two couches, oversized chair and an upright piano, perfect for entertaining or gathering. Large laundry room with foldout ironing board (iron included as well).
Check In Details:
Front door has electronic keypad entry and code is personalized for each guest provided prior to check-in. High-speed Wi-Fi offered throughout the house with log-in and password details provided at check-in. Towels and wash cloths are included. First round of paper products are complimentary. Additional paper products needed are responsibility of the guest.
Check-in time: 3:00PM
Check-out time: 10:00AM
We want you stay to be as comfortable as possible, the owners are 3 minutes away and able to assist if anything is needed.
Family Friendly 7 bedrooms, 45 baths with game room & deck is located in Jamestown. Family Friendly 7 bedrooms, 45 baths with game room & deck provides accommodation, featuring Wellness Facilities, Barbecue/Outdoor Cooking, Sports/Activities, among other amenities. This House features Wellness Facilities, Barbecue/Outdoor Cooking, Sports/Activities, to make your stay a comfortable one.
Family Friendly 7 bedrooms, 45 baths with game room & deck has 7 Bedrooms , 4 Bathrooms, and max occupancy of 21 people. The minimum rental for this property is 1 nights, but this can change depending on the season you plan on staying. Previous guests have given good rated it, and VRBO labeled it a top-rated House because of the excellent services rendered by the owner or manager of this House, and has consistently provided great experiences for their guests. Most families or guests that use it recommend it to their friends and some of them are repeat guests. House has a friendly neighborhood, and the Jamestown has interesting places to visit. If you want to learn more about the House in Jamestown, such as places to visit and things to do nearby, you can check below to learn more.
Amenities
Policies
Extra-person charges may apply and vary depending on property policy government-issued photo identification and a credit card, debit card, or cash deposit may be required at check-in for incidental charges host has indicated there is a carbon monoxide detector on the property host has indicated there is a smoke detector on the property long-term renters welcome onsite parties or group events are strictly prohibited safety features at this property include a fire extinguisher, a first aid kit, and a deadbolt lock special requests are subject to availability upon check-in and may incur additional charges; special requests cannot be guaranteed this property has outdoor spaces, such as balconies, patios, terraces which may not be suitable for children; if you have concerns, we recommend contacting the property prior to your arrival to confirm they can accommodate you in a suitable room this property is managed through our partner, vrbo. you will receive an email from vrbo with a link to a vrbo account, where you can change or cancel your reservation